Bernkasteler Moselapartments
Preview only — see all hotel photos
See all 59 photos
Vis hotel på kort
Bernkasteler Moselapartments
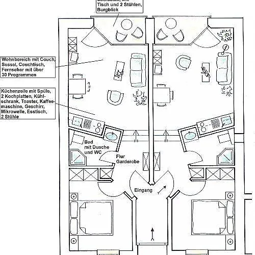
Bernkasteler Moselapartments ferielejlighed ligger i Bernkastel-Kues, 30 km fra Frankfurt Hahn lufthavn, og tilbyder fri Wi Fi i hele ejendommen. Denne ferielejlighed indeholder 10 værelser med satellit-tv, en privat værdiboks og en balkon.
Gæsterne kan finde Cusanusstift inden for 500 meter fra indkvarteringen, mens Zur Badstube ligger 800 meter væk. Byens centrum ligger 1 km væk derfra. Restaurant Ochs ligger omkring 5 minutter væk og serverer europæiske, centraleuropæiske og tyske måltider. Indkvarteringen ligger i nærheden af Cusanus-Denkmal.
Badeværelsesfaciliteter indeholder en bruser og en hårtørrer.
Gæsterne kan også bruge en mikrobølgeovn, el elkedel og et køleskab. Kues, Schulstrasse busstoppested ligger inden for 100 meter derfra. Gæster kan prøve vandreture, cykling og fiskeri for at gøre deres ophold anderles.
Faciliteter
Hovedfunktioner
- WiFi
- Aktiviteter
- Mad/Drikke
- Børnevenlig
- Kæledyr
Faciliteter
- Rygning forbudt på alle fælles- og privatområder
- Wi-Fi
- Parkering
- Sikkerhedspengeskab
- Kæledyr tilladt
- Vagtservice
- ATM/Hæveautomat
- Barber shop
- Kaffebar
- Røgdetektorer
- Brandslukkere
- Nøgleadgang
- Kedel
- Køkkengrej/ Køkkenredskaber
- Restaurant
- Udendørs spiseområde
- Kanosejlads
- Vandreture
- Cykling
- Minigolf
- Fiskeri
- Butikker/Handelsservices
- Varme
- Dagligstue
- Spisebord
- Fladskærms TV
- Tremmesenge/vugger
- Tæppebelagt gulv
Politik
- Børn og ekstra senge
- Der tilbydes ikke ekstra senge på værelset.
Kort
Lokale seværdigheder
Lufthavne
- Frankfurt Hahn Lufthavn (30 km)
Anmeldelser
100% Verificerede anmeldelser